Overview
- Zaktualizowano
- 13 lutego 2026
- 1 Łazienki
- Rok budowy: 2000
Opis
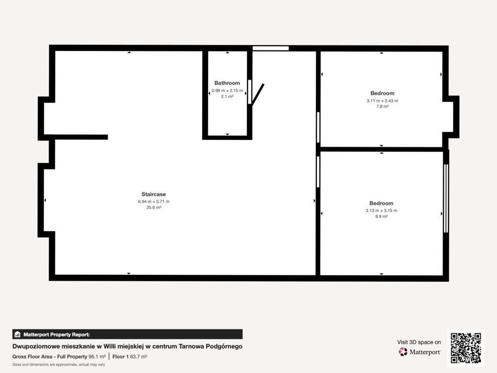
Dwupoziomowe mieszkanie z antresolą – Tarnowo Podgórne, ul. Słonecznikowa | 84 m²
Szukasz mieszkania, które daje więcej przestrzeni i swobody niż standardowy układ? To może być dokładnie to!
Na sprzedaż komfortowe, dwupoziomowe mieszkanie o łącznej powierzchni ok. 84 m²
(64 m² + ok. 20 m² poddasza użytkowego), położone na II piętrze kameralnej willi miejskiej z 2000 roku.
Przemyślany układ, który naprawdę się sprawdza
Poziom główny:
- jasny salon z miejscem na kuchnię – do własnej aranżacji
- dwie ustawne sypialnie
- łazienka
- wygodna komunikacja
Poddasze/antresola (ok. 20 m²):
- dodatkowy pokój – idealny jako sypialnia, gabinet lub pokój dla dziecka
- garderoba
Mieszkanie jest świeżo po remoncie – odmalowane, z nowymi panelami i wykładziną na antresoli. Możesz wprowadzić się od razu i urządzić je dokładnie tak, jak chcesz. Układ jest bardzo funkcjonalny, a strefa dzienna i prywatna są wyraźnie oddzielone.
Duży plus to niskie koszty utrzymania.
Ogrzewanie gazowe, nowy, roczny piec dwufunkcyjny, mieszkanie bezczynszowe.
Lokalizacja, która ułatwia codzienne życie Ul. Słonecznikowa to spokojna część Tarnowa Podgórnego, a jednocześnie wszystko masz pod ręką:
- szkołę podstawową i przedszkola – w zasięgu krótkiego spaceru lub kilku minut jazdy
- sklepy spożywcze, punkty usługowe i restauracje, które pozwalają załatwić codzienne sprawy po drodze
- tereny rekreacyjne i spacerowe – idealne na aktywny wypoczynek po pracy
Dużym atutem jest też szybki i wygodny dojazd do Poznania – zarówno samochodem, jak i komunikacją podmiejską. To świetne rozwiązanie dla osób pracujących w mieście, które po pracy chcą wracać do spokojniejszego otoczenia.
Do mieszkania przynależy komórka lokatorska w piwnicy o powierzchni 4,4 m2 oraz współdzielony ogródek z tyłu budynku – miły bonus na ciepłe dni.
Pełna własność, brak obciążeń.
Jeśli chcesz zobaczyć to mieszkanie na żywo albo dopytać o szczegóły – zapraszam do kontaktu.
Sandra Kosmala tel. 533-951-000
licencja pośrednika nr 26844
Ecoproperty
Zapewniamy kompleksową obsługę transakcji oraz pomoc przy uzyskaniu kredytu finansującego zakup!
Przedstawione dane mają charakter informacyjny i nie stanowią oferty w rozumieniu przepisów K.C.
















